郑州航空港第八安置区第130中学
No. 130 Middle School in Zhengzhou Airport's Eighth Resettlement Area

本项目位于郑州航空港经济综合实验区,是第八安置区的配套安置项目之一。如何在有限的项目预算下,创造高品质的空间,是对建筑师设计及各方面把控能力的考验。

设计从新型教育模式对空间的需求出发,溯本清源,回归本质,营造丰富精彩的多层次空间;精心研究材料的特性,细部节点,让有限预算下的材料有高格调、高完成度的表达。

项目概况:
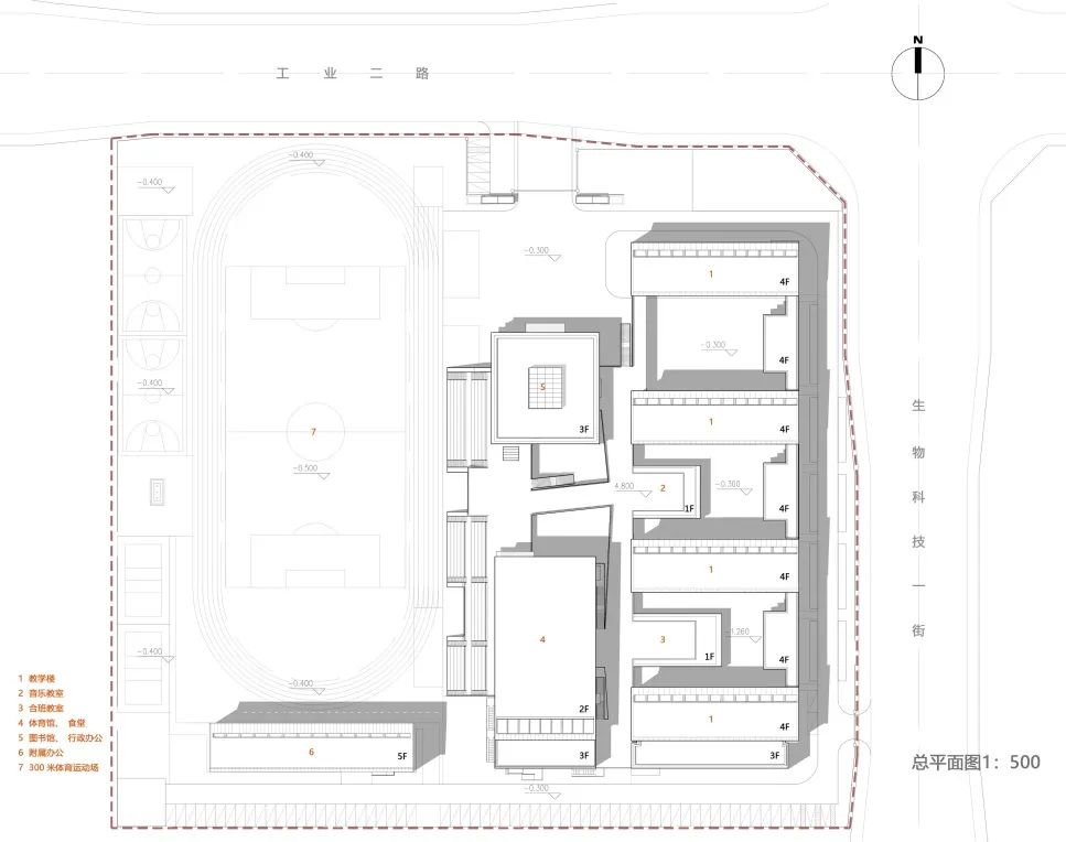
基地面积: 31640.4 ㎡
总建筑面积: 22163.9 ㎡
容积率:< 0.8
建筑密度:< 35%
建筑限高:24 m
郑州航空港经济综合实验区是以航空经济为引领的现代产业和服务的中心,未来也将成为航空港区宜居社区的重要组成部分。

▲总平面图
郑州市第130中学是一所30班的初级中学,是郑州航空港经济综合实验区河东第八安置区的配套初级中学。基地位于第八安置区的北部,用地性质为中小学用地,地块比较规整。基地东、北侧为城市次干道,西侧邻近规划景观河道,南侧为规划商业用地。

▲校园鸟瞰
建筑设计中需要面对和解决的问题和挑战:
1. 基地现状条件的局限,以及社会教育环境的变化对学校功能及复合空间使用的需求;
2. 营造有场所感的情景式校园,以现代建筑设计语汇与材料,表达地域传统文化,增强建筑的场所感和归属感;
3. 控制建筑造价,考虑经济合理的解决方案。

▲校园内景
郑州市第130中学相比于传统的学校,功能更集约化,空间感受更公建化。校园有许多建筑灰空间来提供交流场所,并且引入了隐性课堂和扩大的共享空间。这些恰恰是传统学校建筑中缺少的。

▲体块生成分析图
设计以日常学习需求为出发点,对校园规划设计建设各个环节进行系统思考,以“开放型空间”作为本次设计的切入点,通过“组团院落”和 “二层活力平台”空间的打造,为教学和生活提供了开放型的学习交流空间。

▲体块生成分析图
将不同功能进行复合叠加,如普通教室和专用教室,食堂和体育馆,创造出一个高度集约化的校园有机整体。既解决了用地紧张的现状,又符合了当代校园设计的集约化、复合化的趋势。

▲功能及公共空间分析图
用二层的室外活动平台把教学楼、体育馆、食堂进行串联,形成学生自己的活动中心。通过主体连廊的架空,以及建筑体量的穿插、进退,在提供教学场所的同时,营造丰富的室内外活动场地,引导学校教育模式的革新。
在四栋教学楼之间,参照传统的“学堂书院”的空间布局,试图重塑一种清新淡雅的书香氛围。

校园规划融入现代校园空间特征,以基于传统、推陈出新的设计理念,传承校园文脉。围绕庭院结合景观设置了合班教室,以组团院落为主体进行景观渗透,打造开放式灰空间串联教学楼体量,从而形成由外而内的渗透性景观格局,激活原本相对消极的公共空间。

室外小剧场,透明广播站,室外种植区等复合功能的叠加更好地为师生提供了课间活动和交流的需求,赋予了组团院落更多活动空间的可能性,从而达到了1+1>2的效果。

▲校园内景
在遵循第八安置区整体建筑风格的前提下,巧妙实现传统文化的当代表达;在低成本、低造价的情形下,把细部设计作为空间设计的重要组成部分,高品质地呈现建筑的细部之美。

▲沿街立面
场地周边是第八安置区的高层住宅,在设计过程中我们希望与住宅整体的坡屋顶造型呼应,体现鲜明的地域特色,又能展现青少年的活力形象与特征。以现代设计语言和材料,表达中原地区独特的地域文化。

▲校园与周边住宅建筑
因此,屋顶采用了单坡顶的形式,与整体风格形式保持一致;与此同时,我们遵循“形式追随功能”的原则,把坡屋顶下方的空间用作空调室外机组的空间,做到空间的有效集约利用,也使得建筑的第五立面更加的干净和美观。

▲校园内景
在材质的选用上,我们采用了深灰色调的金属直立锁边屋面,与安置区的整体风格保持高度一致。在传统坡顶的造型下,实现功能的“微创新”。
建筑饰面主要采用灰色涂料,局部点缀格栅百叶。灰色的建筑基调勾勒出清新淡雅的书院氛围;局部点缀的深灰色则渲染了淳朴浓郁的书香气息。

▲立面效果
建筑造型以现代的手法表现出传统的意蕴,整体风格精致、典雅,实现现代和传统的有机结合,表达出校园的文化性和时代感。

▲立面效果
由于造价的严格控制,百叶的材料为空调室外机百叶的再循环利用,通过有节奏韵律的错动和变化,彰显一定的细部品质。

▲墙身节点

▲总平面图

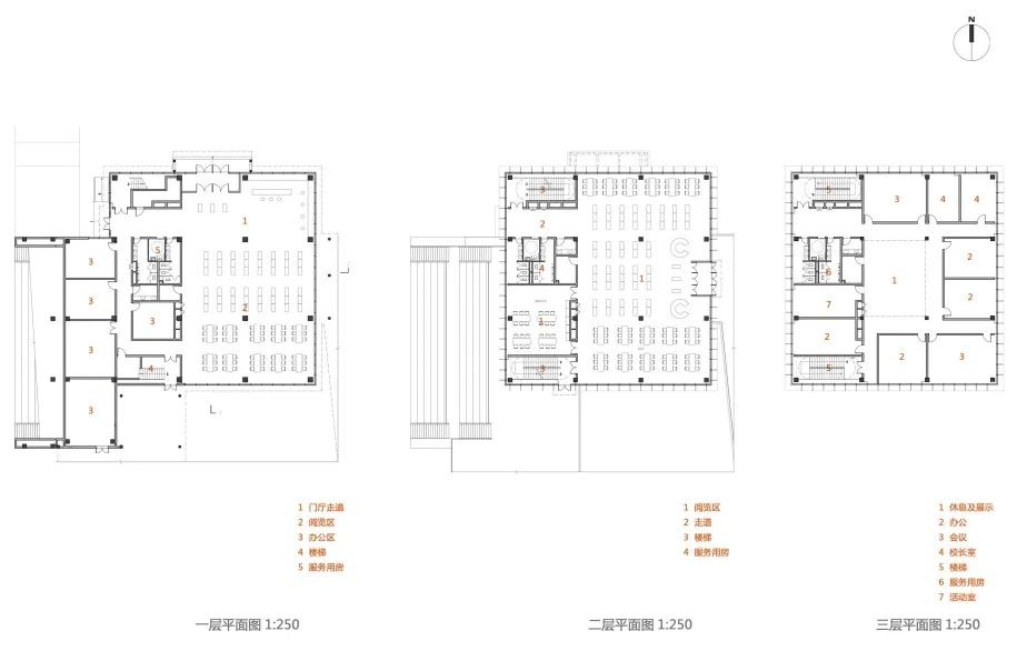
▲教学楼一层平面图
▲教学楼分立面图

▲教学楼剖面图

▲办公楼平面图

▲办公楼立面图

▲办公楼剖面图

▲图书馆平面图

▲图书馆立面图

▲图书馆剖面图

▲体育馆平面图

▲体育馆立面图

▲体育馆剖面图
项目名称:郑州航空港第八安置区第130中学
项目地点:河南省 郑州市
建成时间:2019年
建筑类型:教育
设计单位:上海联创设计集团股份有限公司
方案团队:UDG 创新设计中心 UDG中国 / 一室
建筑团队:上海联创 建筑设计一院 / 设计三部
结构团队:上海联创 结构一部
机电团队:上海联创 机电一部
景观团队:上海联创 景观设计二部
室内设计:郑州一建集团有限公司
施工单位:郑州一建集团有限公司