项目位于保利N+林海青年社区内,建筑整体处于半山腰上。保利公寓希望本次项目进行创新实验性设计,打破原有空间的阻碍。
▼公区概览

“可生长的公区空间”,满足年轻居住着社交、娱乐、休闲等需求。根据社团的不同需求和空间的尺度进行有机生长。组合与露台共享轴链接,同时露台可作为共享轴的休闲交流空间。提升租户的生活品质,营造丰富的社群体验与圈层效应。

▼概念思考

▼原始照片

其一:公区无外窗,光线较暗,层高与梁位都较低,感觉压抑,需要有舒适感与透气性,
其二:公区空间两柱之间有斜梁,各功能过于琐碎,没有互动性。
▼设计主题

▼客群画像

▼微躺微醺区

绿植+阳光的组合,设计加深了卡座区座深至1m,可让租客在此惬意的“微躺微醺”。
▼时光隧道

与高校联动,鼓励大学生办私人展览,或在公区做艺术展览交流,增加社区互动和展示个人才艺的舞台;时光隧道的玻璃隔断,适合举办画展,用时兼具采光。
设计上选择在靠近露台一侧用玻璃隔断将光线与绿植最大限度引入公区空间;公区局部采用吊顶,大面积采用裸顶来扩大视觉效果。
▼无限影音区




公区的软装上选用可自由组合的移动坐凳,不使用时可收纳置在墙面70cm大进深“微躺”卡座下方;坐凳下方自带的收纳盒也可供使用者临时放置物品。几何形大长桌打破空间中“斜梁”的限制,增加各功能分区的互动性。
▼情绪吧台

情绪吧台与厨房之间的存在的“斜梁”,通过墙面设置的收纳柜,很好的隐藏在内部。
▼闪动的表情灯


“情绪吧台”的表情灯通过红色按钮闪烁跳动,每日有一款隐藏特惠表情,住户探测出隐藏表情,则咖啡或酒水8折,增加彼此互动趣味性。
▼周末1度电厨房



智能化自助厨房,扫码通电,一度电即可与家人朋友享受三菜一汤,开放式窗口的设计,发挥厨艺之余可与朋友无障碍交流,让下厨不再封闭无趣。
▼60分钟健身房

预约式多功能健身房,60min课程训练,为住户提供最专业自由的健身条件。
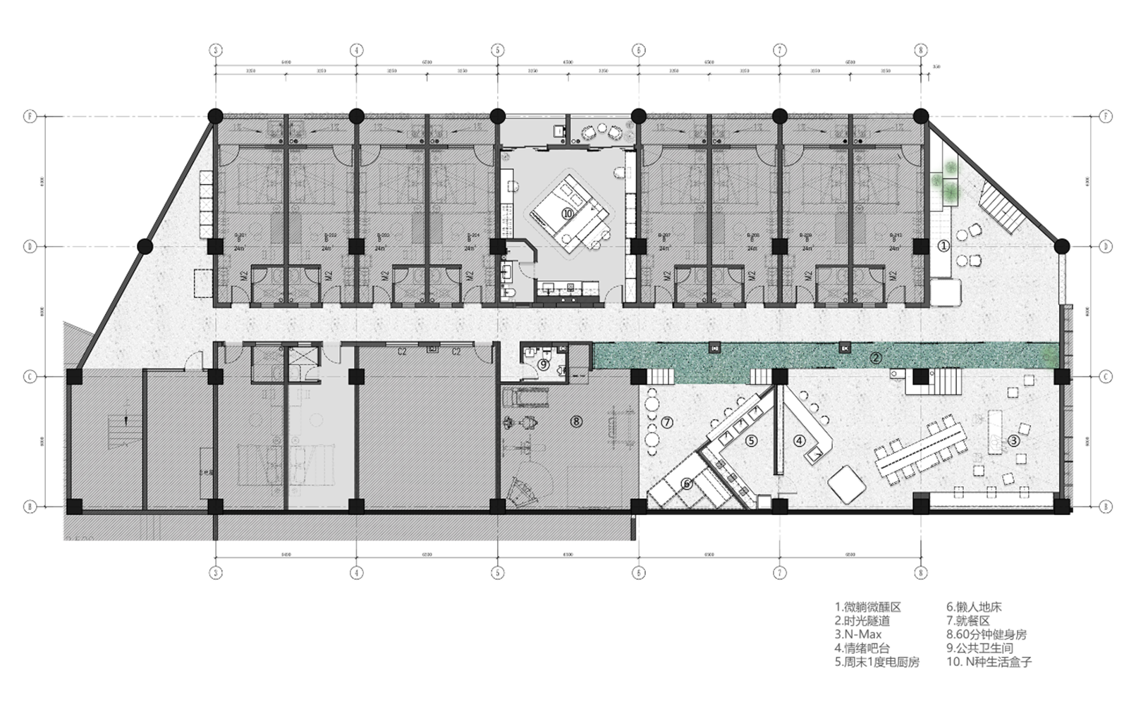
▼公区平面图

▼公区爆炸图

最开始的公寓分为两间房间,保利公寓希望本次项目可作为进行创新实验性设计,将两间房间打通,并在有限空间内做出多种功能可能性是本项目的主要挑战。为此,计划设计一个可旋转的盒子,通过盒子的转动组合确保各区域间的相对独立性与层次感,探索未来租住新体验。
▼公寓概览



N种生活盒子-主题公寓以盒子模块为基本设计单元,组成功能多样的盒子空间,再通过盒子的旋转创造出多样化的场景单元空间。根据不同的使用需求来旋转盒子对应所需功能,宜可以自由搭配。
N种生活盒子主题公寓所在的位置是青年的聚集地,在这里租住的用户大多为年轻人,“爱玩”、“爱分享”是他们的生活特征。我们定义这个空间的使用者为一对情侣主播,因此划分了左右两侧独立空间,左侧为女生的直播间,右侧为男生的电竞区,每一处居住空间都映射着当代都市青年的兴趣倾向。当盒子旋转时,又会发生更多空间可能。

▼概念思考

▼从房间看向入口

▼男生活区


在男生活区的墙面设置了充足的洞洞板,收纳灵活,拿取方便;可让男主人自由发挥,放置耳机、游戏设备、运动器材等物品;可以把东西挂起来,充分利用纵向空间。
▼女生活区


在女生活区的墙面设置了落地的透明亚克力收纳柜,可收纳女主人的衣物、包包、化妆品,精致的的柜体材质宛如一个橱窗展柜,直播时也方便拿取物品;同时,通过通透的材料,更好的减弱空间的拥挤感。
▼餐厨模式


▼电竞模式

▼客厅模式

▼平面图

▼轴测图

项目名称: 保利公寓NBOX-未来租住实验室
业主:保利公寓管理有限公司
设计方:上海联创设计集团股份有限公司 室内设计院
项目地址:广州市天河区保利N+林海青年社区
设计面积:300㎡+57㎡
设计周期:2021.6~2021.7
建设周期:2021.7~2021.11
室内团队:顾力荟 但洁琼 胡岳申 袁沈慧
软装团队:李缇萦
施工图团队:郑卓 韩瑞
摄影团队:ingallery
施工单位:广东叁拾工程有限公司