许仙港藻水分离站位于无锡市南端,美丽的贡湖湾湿地公园内,坐落于太湖之滨。而无锡夏日频繁爆发的蓝藻和盛行的东南风向,使基地周边成为太湖蓝藻的“重灾区”和“主战场”,2007年以来,无锡市政府始终坚定“除藻治太”行动,大力推进太湖流域生态共治。而场地中原分离站陈旧的设施无法满足日益增多的蓝藻治理需求,软硬件设施更新迫在眉睫。
▼项目概览

▼场地环境

本项目不仅作为蓝藻打捞、分离的站点之一,亦作为蓝藻防控工作的宣传和展示窗口,通过集约的空间规划、创新的展示模式、现代的建筑造型,打造一个空间积极、开放体验、功能复合的蓝藻治理站点。
▼分离站主入口

▼项目区位

基地位于无锡市南端,市政府中轴线终点,南临太湖,景观环绕,拥有得天独厚的景观资源。项目在原许仙港分离站的旧址上原拆原建,太湖景观及其周边环境成为基地的优势,因此区别于传统工业建筑的空间封闭、专业性强、与外界隔离等特征,设计团队从建筑公共性着手考虑,希望破除传统厂房封闭、单一的工作模式。借力贡湖湾湿地公园的环境优势,将作业、展示、体验、休憩等功能融为一体,实现场地和建筑的价值最大化。
打捞作业与参观展示融为一体是本案设计的主要策略。在空间组织上,一层主要为除藻作业区,根据工业流程,高效有序地排布打捞设备;二层围绕作业区形成完整流畅的展示参观空间。通过平面功能与竖向交通的叠加组织,将公共、复合的理念呈现出来。
▼核心理念

▼操作与展示的功能融合

室内空间以极简手法处理,呈现原汁原味的工业风。外墙保持清水混凝土原貌,使建筑立面内外连贯、完整一致;室内地面及内墙采用哑光岩板,并延展于整个入口大厅。光线透过二层玻璃幕墙进入,形成通透明朗的空间感受。
▼一层入口门厅



深灰色岩板石地面通过楼梯延伸至二层展厅,强化了空间的整体性和引导性。并以铜板刻字的方式,将无锡“除藻治太”的手段与决心印刻在楼梯踏步。
▼大事记楼梯

环绕设备的二层展厅采用通透的落地玻璃窗,并将各个步骤的除藻工艺流程印刻在冰屏上,沿着楼梯和坡道进入二层,可观看到藻水分离的操作过程及其图文解说。
▼结合工艺展示的坡道

观者沿坡道参观完整个除藻流程,最终到达二层的临湖展厅,太湖景色尽收眼底。许仙港藻水分离站不仅是打捞作业空间,也作为蓝藻治理的先锋试点,二层展厅既是蓝藻科普点、成果展示点,也是绝佳的观湖平台。
▼从展厅观赏太湖景色

展厅整体采用新风系统设计,以减少蓝藻处理过程中散发的刺鼻气味对展示、科普、休息区域的影响,使观者享受舒适的体验。
▼二层展厅空间


位处湿地公园、太湖之畔,建筑最好的表达应是谦逊低调的姿态,因此分离站的外观及形式都采用最干净简洁的语言。建筑外立面由清水混凝土和玻璃幕墙上下两段构成,展现建筑形体和材料本真的美感。玻璃幕墙将梁柱结构包裹在内,玻璃与清水混凝土模板宽度对应,使得建筑整体呈现严谨、纯粹、简洁的现代之美。半圆形的镜面水池环抱建筑东侧,映射朴素、干净的清水混凝土墙面。
▼材料之美——清水混凝土外墙

▼东立面和镜面水池






新的藻水分离站投入使用后,不仅极大改善了原有的作业条件,使更新的设备投入高效的除藻工作中,提升打捞人员的工作环境品质;同时展览、观赏、科普等功能的植入,使工业性与公共性融合,建筑真正地融入了自然与使用者的需求,除藻治理的成果则成为悦目的景观回馈于建筑与人。
▼首层平面图

▼二层平面图、地下平面图

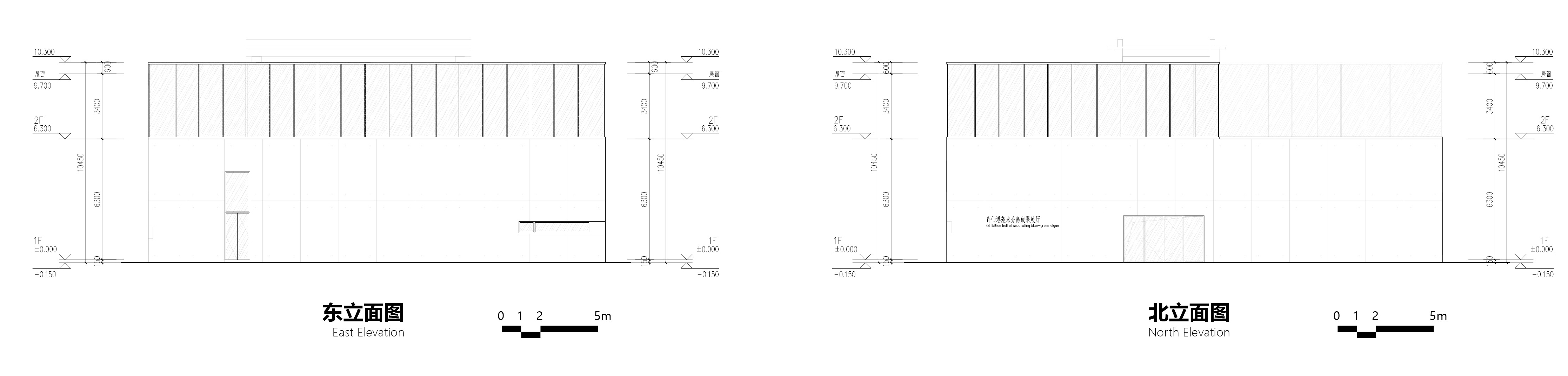
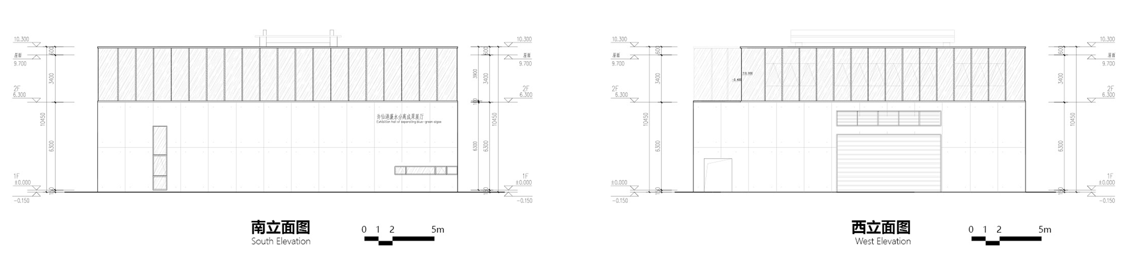
▼立面图


▼剖面图

项目名称:许仙港藻水分离站
业主:无锡市经开区华庄街道
设计方:上海联创设计集团股份有限公司
项目地址:无锡市贡湖湾湿地公园内
用地面积:1260㎡
建筑面积:840㎡
设计周期:2020.8~2020.12
建设周期:2021.1~2021.6
设计团队:宣磊 汤彬彬 张勇 姚姣阳 罗涵意
摄影:MLEE STUDIO