联创设计

致敬经典——北宋时期的淮安作为全国第三大城市,见证了宋朝最辉煌的时期“宋”元素提取+现代化演绎的精工立面、现代居住理念引领的场景化生活新体验与千年前处于经济文化发展巅峰期的“宋”来一场超时空对话。

建筑不仅是形式的载体
也是一种空间策略
它提供一种秩序,整合住宅的
空间、形式、功能、装饰
它的迭代也体现着生活实践场景的演化

示范区形象参照宋代园林建筑,总体布局均衡、方正、有序但又不失趣味
大面积高透玻璃将室内外环境充分融合
整体色调暖色如璞玉、屋面平直不过分飞扬
保留宋代文化中的低调平和感,也暗合了淮安传统建筑的内敛风格
项目位于江苏省淮安市清江浦区,承德北路以东,圩北路以西,健康东路以北,场地北侧为黄河故道,与淮安市樱花园隔江相望。项目周边有大量住宅区,且位于城市主次干道交汇处,能够吸引较多人流。

▲项目区域位置
附近有万达、苏宁易购、大润发及自建的三万多平中海寰宇系商区等。南侧规划有九年一贯制实验学校,西侧已有三级甲等综合性医院,满足小区及周边居民的教育、医疗需求。

▲项目区域位置
多地块空间联通,组合成超尺度豪华城市花园,最大楼间距约80米,景观视线通廊长达400米;开放式中央草坪,将绿色与生活连接,沉淀思绪,让生活绿意常伴。

▲大区鸟瞰效果图
在自然与城市之间,由一段水岸,延展出滨河的生活传承。项目整体的布局采用“前庭后院”式的规划逻辑,借用中国古典园林一步一景,步移景异的造园手法,逐步展开空间序列。外立面的设计中,提取淮安文化因子,融入现代居住理念,以高档石材的稳重与大面积玻璃窗墙的时尚感,以铝镁锰板代替瓦屋面呈现出历史与现代生活交融的美感。

▲ 建筑夜景鸟瞰
汇四时之景,晨昏两相合一,把传统的“四水归堂”运用到现代的售楼处里,传承文化延续思想,提炼精华,返璞归真。

▲ 建筑和景观的融合
宋代建筑结构收敛,屋檐多出挑深远,在阴影下看,建筑线条的水平感突出,有向两侧延伸的意味,呈现出一种轻盈典雅的特征。

淮安有“四水穿城”之称 , 方案融入淮安水文化,将前场设计为水庭院,贴合本土化特征。空间布局上借用中国古典园林一步一景的造园方法,传承中式传统宅院的空间特征,打造四进院落的空间礼制,以雅致五景营造清流名仕的府苑景园。


一进 崇德礼闲,宾至如归大门设计灵感是传统的砖砌花格墙,通过立面砌法的演变,形成一种新的景观语言。项目巧妙地将宋式元素文化符号融入设计之中,演绎现代新中式风格景观,打造黄河故道上新的人文社区地标。

▲建筑入口处
二进 初探庭院,礼遇东方以宋式书院美学为基调,入院空间不是一目了然,而是如同画卷一般,随着路径的深入徐徐展开,起承转合,有门,有廊,有院,有堂。

▲建筑二进院落入口
三进 亭台水榭,妙趣横生
如果站在书阁之中,你会惊讶在这方寸天地中,却别有洞天:晴时阳光洒落,雨时水流沿四檐跌落,风、光、雨、雪,汇聚一处,四时皆景。

▲建筑三进院落
四进 悠游庭苑,宁静致远穿过洽谈区,步入山水景墙围合的茂林空间,为建筑的呈现做出铺垫。园景打造了一个宁静的空间,让人仿佛置身于园林之中,增加生活气息。


▲ 一层平面布置图
出则繁华,入则宁静,从接待区到沙盘区,空间氛围跟着自然光线的变化而变化,通过艺术设计和人文关怀让客人在空间里体验不同的状态,产生一种对空间的留念之感。

▲ 二层平面布置图
示范区和商业街区的功能要求,决定了建筑简洁高效的平面形态。设计师在布局营造之中依据展示流线布置空间序列,并且充分考虑以后的使用功能

▲ 综合流线
依托于形象大门和城市会客厅的服务,归家路线已经从单一流线演变成多功能、多流线形式;无雨落客区、归家大堂、架空层泛会所,多重礼序归家空间是对业主的尊重;休息会客,快递暂存,搬家货运,夜间归家,网约车等候等精致周到的服务是对业主的体贴。
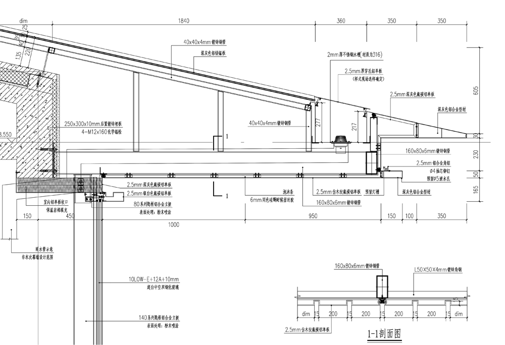
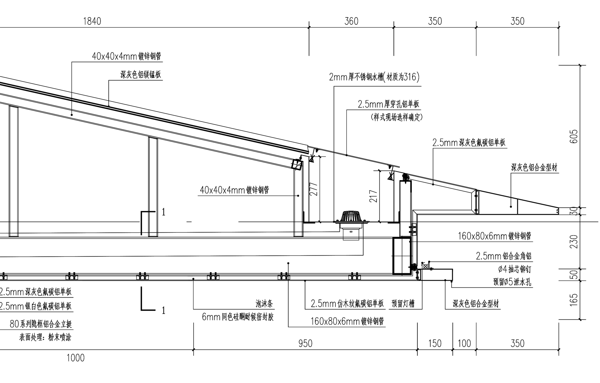
在保证整体风格典雅大气之外,对细部节点进行精心雕琢。在材质接口处采用巧妙的“隐形”手法,用大面积高透玻璃、平直歇山屋顶、完整连贯的木纹铝板吊顶、见光不见灯的收口等充满韵律感的设计来完善建筑细部。

铝板胶缝设置在专门定制的木纹铝板的凹槽中,并设置同材质盖板遮掩,形成完整连贯的吊顶界面。

▲吊顶“隐形”交接,吊顶铝板交界处的隐藏式处理
“如鸟斯革,如翚斯飞”,诗经中古建筑的屋顶如同鸟儿的翅膀一样,展翅欲飞。檐口收边采用定制型材,使建筑挑檐收口尺寸更小,整体飘板更加精致。结合独特的设计,把灯槽藏在挑檐的线脚中,打造出夜间售楼处见光不见灯的效果。

▲阳角定制型材收边和隐藏式灯槽的处理
玻璃幕墙由中空玻璃暖边条和玻璃交界处硅酮结构胶所形成的黑边,由竖向折形内凹金属嵌条进行遮挡遮盖,保证近人尺度的精细度。

▲金属嵌条对黑边的遮挡效果






在空间中铺陈出别有风致的现代中式美学,处处透露着对东方清雅生活意境的美好追求。整个空间中,没有任何显著的东方符号堆砌,言有尽,意无声,却自始至终浸透着东方特有的禅思静谧。
项目名称:淮安中海淮上景明苑
业主:中海宏洋地产(徐州)有限公司-淮安公司
项目地址:江苏淮安
展示区景观面积:7760㎡
展示区建筑面积:4326.8㎡
设计及建设周期:2021.8~2022.4
建筑设计:上海联创设计集团股份有限公司
设计指导:周宇
设计团队及设计人员:联创设计集团上海公司
设计七部 冯韬,隆菲,陈鹏飞,杨进,王雪源,沈超南,杨颐林
业主方设计管理团队及设计人员:徐州及淮安公司设计管理部
陶建平,王育,陈中耀,刘明星,李旭
景观设计:上海广亩景观设计有限公司
室内硬装及软装设计:广州燕语堂装饰设计有限公司
幕墙设计:南京三叶草工程设计有限公司
泛光设计:上海匠旭照明设计工程有限公司
摄影:《淮楼》赵耀