2020年7月1日
新建沪苏通铁路正式通车
太仓跨入高铁时代
由联创设计集团设计的太仓高铁站
正式启用

7月1日,正值中国共产党建党99周年,新建沪苏通铁路正式通车。沪苏通铁路是国家中长期铁路网规划"八纵八横"高速铁路主通道中沿海通道的重要组成部分,正线全长137.5公里,设计时速200公里。沪苏通铁路开通运营后,将使苏州所辖张家港、常熟和太仓三市同时接入长三角铁路网。
太仓,东濒长江,南依上海,素有“锦绣江南金太仓”的美誉,其境内的太仓港是中国历史上名扬海外的古港,因郑和下西洋在此扬帆起锚而写下中国对外航海、贸易的历史篇章,如今也是长江口商业大港。今日通车大喜,我们也借此文先来目睹一下新建太仓站的风采。

太仓站,位于江苏省太仓市浏河镇,中心里程DK106+680。站房面积10998平方米,高度为21.50米,主体为钢筋混凝土框架结构,屋面为钢结构网架和铝镁锰金属板,为线侧下站房,设2座550m×12m高架中间站台,正线2条,到发线4条,设进出站通道各一座,采用下进下出的流线组织方式。预测最高聚集人数为1500人。

仓站站房长148米,宽51.2米,造型以郑和第七次下西洋舰队旗舰郑和宝船为理念,按相近比例建造(根据《明史·郑和传》记载,宝船44丈长、18丈宽),将船帆、桅杆等元素融入外立面,整个建筑运用直线与曲线的完美结合,打造简洁大气的现代化交通建筑形象,寓意太仓市“扬帆起航、走向世界”, 表达出太仓开拓创新,敢为天下先的精神。

室内设计充分挖掘太仓当地历史文化,截取经典典故“郑和七下西洋”,以船文化融入到内装空间。候车大厅仿照郑和宝船航行于大洋中的壮阔场景设计船型吊顶,四周辅以代表海洋的“水滴”状花纹,柱子的柱头采用宝船的“船头”造型,一楼两侧吊顶和站台通道所使用的三角形吊顶则是通过“船帆”演变而来,整体形成了极富地域特色的现代海港城市候车空间。


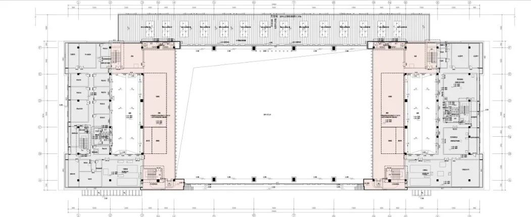
| 平面功能布局 |
站房两层,局部一层。中间为通高的候车大厅,两侧为两层布置。各层布置如下:一层中间为候车大厅,候车大厅左侧为公共卫生间、VIP候车室、旅客服务、设备用房等。候车大厅右侧为公共卫生间、商务候车室、旅客服务、售票大厅、售票室、管理用房、消防控制室等用房。


二层左右两侧各有开放式旅客服务区域与一层候车大厅便利相通,其余为办公设备用房。

| 流线组织 |
站房为线侧下式,本站采用下进下出的流线组织方式。旅客通过安检设备后进入候车大厅。旅客在候车厅候车后,检票,经进站通道及楼、扶梯到达站台上车。到达旅客通过各站台的出站楼、扶梯下至出站通道,经出站通道到达出站厅,于站台下方直接检票出站,亦可通过换乘通道回到候车大厅进行换乘。

项目名称:新建上海至南通铁路(南通至安亭段)太仓站
项目地点:江苏省太仓市浏河镇
建设单位:沪宁城际铁路股份有限公司
设计单位:上海联创设计集团股份有限公司
施工单位:中铁三局集团有限公司
监理单位:上海华东铁路建设监理有限公司
建筑/室内团队:联创设计集团 交通建筑设计研究院
结构团队:联创设计集团 结构二部
机电团队:联创设计集团 机电一部
幕墙团队:北京佑荣索福恩建筑咨询有限公司
摄影团队:iNNS合什建筑影像